Rif: RODRI
MILANO
MILANO - zona Cantalupa - San Paolo
VENDESI COMPLESSO IMMOBILIARE INDIPENDENTE CON UFFICI E AREA SCOPERTA AD USO PARCHEGGIO.
La proprietà si estende in Via Don Rodrigo e in Via Fra Cristoforo, in prossimità dello svincolo autostradale Milano-Genova, Piazza Maggi, Viale Famagosta (MM2) e la riqualificata zona del Naviglio Pavese.
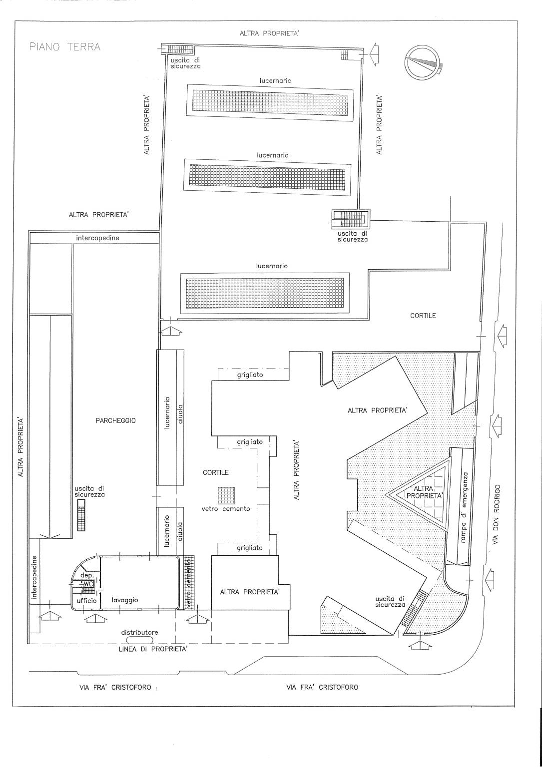
In tale contesto urbano, a breve distanza dalla circonvallazione, proponiamo in vendita un complesso immobiliare composto al piano strada da un fabbricato indipendente con tre accessi ad ampia area esterna di circa 1000 mq ad uso parcheggio.
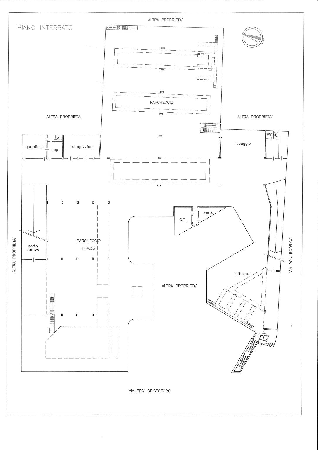
Da due rampe carraie e un ingresso pedonale si accedere al piano interrato di circa 3600 mq. in passato utilizzato come autorimessa con officina, lavaggio auto, uffici, magazzini e servizi.
La proprietà ricomprende un fabbricato autonomo fronte strada sulla via Fra Cristoforo di circa 100 mq oltre negozio/ufficio commerciale di 80 mq all'interno dell'area cortilizia di proprietà.
Tutta l'area al piano interrato gode di ampie torrette vetrate che garantiscono luce naturale e ricambio d'aria. La sua prevalente destinazione d'uso è a supporto di attività commerciali e/o produttive e necessita di un intervento di riqualificazione sulla base del suo futuro utilizzo.
Per maggiori informazioni: Dr.ssa Emanuela Segneghi - Mob. 3926881812 - info@centralrealestate.it
La proprietà si estende in Via Don Rodrigo e in Via Fra Cristoforo, in prossimità dello svincolo autostradale Milano-Genova, Piazza Maggi, Viale Famagosta (MM2) e la riqualificata zona del Naviglio Pavese.
In tale contesto urbano, a breve distanza dalla circonvallazione, proponiamo in vendita un complesso immobiliare composto al piano strada da un fabbricato indipendente con tre accessi ad ampia area esterna di circa 1000 mq ad uso parcheggio.
Da due rampe carraie e un ingresso pedonale si accedere al piano interrato di circa 3600 mq. in passato utilizzato come autorimessa con officina, lavaggio auto, uffici, magazzini e servizi.
La proprietà ricomprende un fabbricato autonomo fronte strada sulla via Fra Cristoforo di circa 100 mq oltre negozio/ufficio commerciale di 80 mq all'interno dell'area cortilizia di proprietà.
Tutta l'area al piano interrato gode di ampie torrette vetrate che garantiscono luce naturale e ricambio d'aria. La sua prevalente destinazione d'uso è a supporto di attività commerciali e/o produttive e necessita di un intervento di riqualificazione sulla base del suo futuro utilizzo.
Per maggiori informazioni: Dr.ssa Emanuela Segneghi - Mob. 3926881812 - info@centralrealestate.it
Consistenze
| Descrizione | Superficie | Sup. comm. |
|---|---|---|
| Principali | ||
| Laboratorio - piano terra | 100 Mq | 100 Mqc |
| Esterno - piano terra | 996 Mq | 100 Mqc |
| Ufficio - piano terra | 80 Mq | 80 Mqc |
| Capannone - piano interrato | 3.600 Mq | 3.600 Mqc |
| Totale | 3.880 Mqc | |







