Rif: CN1
MILANO
MILANO - zona Corso Genova
In zona residenziale ricca di locali di tendenza, in una traversa tra Corso Genova e Via Conca del Naviglio, a breve distanza da Sant'Ambrogio, San Lorenzo e la Darsena, proponiamo con incarico in esclusiva, una storica trattoria milanese eventualmente adattabile ad altre attività quali ufficio e show-room.
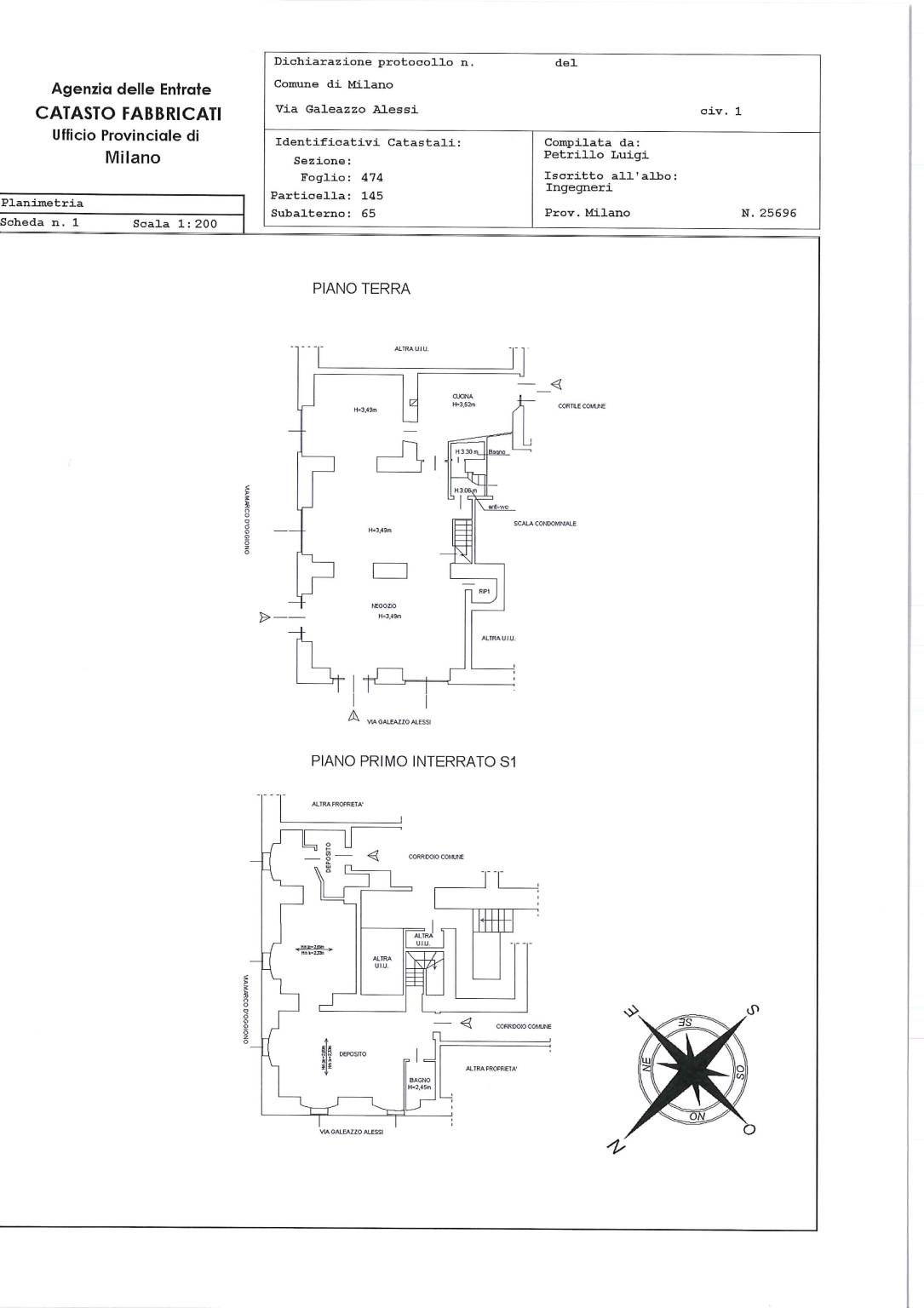
La proprietà è ubicata in stabile d'epoca con corte interna, è in posizione angolare e gode di grande visibilità grazie alle cinque vetrine con doppio ingresso da Via M. d'Oggiono e Via Alessi 1.
Il locale di 134 mq.al piano terreno si compone di tre sale comunicanti tra loro, cucina con canna fumaria funzionante ad uso esclusivo oggetto di recente ispezione, servizio igienico oltre piano interrato di 82 mq, collegato da scala interna, ad uso magazzino/deposito con bagno di servizio.
Dal portone su Via Alessi si accede al vano scala e alla corte condominiale dove sono posti due ingressi di servizio, di cui uno diretto alla cucina utile per il carico e scarico merce.
Il negozio, la cui ultima attività svolta è quella di storica trattoria, è stato oggetto di recente riqualificazione del locale cucina e lasciato a rustico per poter essere liberamente personalizzata dal futuro utilizzatore.
Quale punto di ritrovo storico per residenti e uffici e per la zona e tipologia di immobile si configura adatto sia per proprio utilizzo finale sia come rappresenta un'ottima opportunità di investimento da mettere a reddito.
Le spese condominiali si attestano in circa euro 2.500/annui.
La zona è ben servita dai mezzi pubblici di superficie (linee tranviarie 2 e 14), metropolitana MM2 Sant'Agostino e a breve sarà ultimata la fermata MM4 De Amicis.
Per maggiori informazioni:
Dr.ssa Segneghi - Mob. 3926881812
Inviare le vostre richieste - Rif. CN1 a: info@centralrealestate.it, specificando il nome del brand, della società e il tipo di attività che si vuole svolgere all'interno dei locali.
La proprietà è ubicata in stabile d'epoca con corte interna, è in posizione angolare e gode di grande visibilità grazie alle cinque vetrine con doppio ingresso da Via M. d'Oggiono e Via Alessi 1.
Il locale di 134 mq.al piano terreno si compone di tre sale comunicanti tra loro, cucina con canna fumaria funzionante ad uso esclusivo oggetto di recente ispezione, servizio igienico oltre piano interrato di 82 mq, collegato da scala interna, ad uso magazzino/deposito con bagno di servizio.
Dal portone su Via Alessi si accede al vano scala e alla corte condominiale dove sono posti due ingressi di servizio, di cui uno diretto alla cucina utile per il carico e scarico merce.
Il negozio, la cui ultima attività svolta è quella di storica trattoria, è stato oggetto di recente riqualificazione del locale cucina e lasciato a rustico per poter essere liberamente personalizzata dal futuro utilizzatore.
Quale punto di ritrovo storico per residenti e uffici e per la zona e tipologia di immobile si configura adatto sia per proprio utilizzo finale sia come rappresenta un'ottima opportunità di investimento da mettere a reddito.
Le spese condominiali si attestano in circa euro 2.500/annui.
La zona è ben servita dai mezzi pubblici di superficie (linee tranviarie 2 e 14), metropolitana MM2 Sant'Agostino e a breve sarà ultimata la fermata MM4 De Amicis.
Per maggiori informazioni:
Dr.ssa Segneghi - Mob. 3926881812
Inviare le vostre richieste - Rif. CN1 a: info@centralrealestate.it, specificando il nome del brand, della società e il tipo di attività che si vuole svolgere all'interno dei locali.
Consistenze
| Descrizione | Superficie | Sup. comm. |
|---|---|---|
| Principali | ||
| Negozio - piano terra | 134 Mq | 134 Mqc |
| Magazzino - piano interrato | 84 Mq | 42 Mqc |
| Totale | 176 Mqc | |







